Бокс КМПн-36 IP55 IEK MKP72-N3-36-55
Корпуса пластиковые модульные IEK серии КМПн IP55 предназначены для сборки распределительных электрощитов с использованием модульной аппаратуры, для ввода и распределения электроэнергии, а также защиты сетей напряжением 230 / 400 В от токов перегрузки и короткого замыкания.
Благодаря высокой степени защиты от пыли и влаги IP55 корпуса идеальны для эксплуатации в помещениях с высоким уровнем влажности и содержания пыли: гаражах, автомойках, подвалах, лабораториях и мастерских, а также вне помещений - на открытом воздухе.
Преимущества
- Стильный и эргономичный дизайн.
- Полная комплектация - готовность к сборке.
- Безопасный суппорт для шин N/PE.
- Регулировка DIN-рейки по глубине.
- Возможность перенавески дверцы (установки с двух сторон слева / справа).
- Возможность опломбировки корпуса.
- Возможность опломбировки дверцы.
- Наличие пластиковых винтов обеспечивает удобство монтажа.
- Наличие выламываемых отверстий для ввода кабеля различного диаметра.
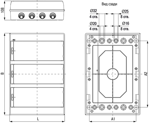
Габаритные размеры

| Размеры, мм | |||
|---|---|---|---|
| А1 | А2 | В | L |
| 260 | 372 | 458 | 306 |
Материалы и цвета
| Цвет корпуса | RAL 9016 |
| Материал корпуса | ABS пластик |
| Материал дверцы | поликарбонат |
Особенности конструкции
![]() |
Высокая степень IP благодаря наличию уплотнителя. | ![]() |
Перенавешиваемая дверца - удобство монтажа и эксплуатации. |
![]() |
Безопасный суппорт для шин N/PE. | ![]() |
Держатель DIN-рейки ступенчатого типа для возможности регулировки DIN-рейки по глубине. |
![]() |
Возможность опломбирования корпуса. | ![]() |
Возможность опломбирования дверцы корпуса. |
![]() |
Монтажный уровень в корпусах на 18, 24 и 36 модулей. | ![]() |
Наличие выламываемых отверстий для прокладки проводов. |
Технические характеристики
| Тип монтажа | навесной |
| Количество рядов | 3 |
| Ширина по количеству модульных расстояний | 36 |
| Шины | N и PE (6 х 9 кв.мм 6/2 - 1 шт.; 6 х 9 кв.мм 10/2 - 3 шт.) |
| Тип крышки | закрытого типа (закрывающаяся) |
| Номинальное рабочее напряжение, В | 230 / 400 |
| Номинальная частота, Гц | 50 |
| Номинальная электрическая прочность изоляции, В | 660 |
| Номинальный ток устанавливаемых аппаратов, А | 100 |
| Температура эксплуатации, °C | -40... +80 |
| Степень защиты от пыли и влаги | IP55 |
| Климатическое исполнение и категория размещения | УХЛ1 |
| Степень защиты от внешнего механического воздействия | IK05 (0,7 Дж) |
| Класс защиты от поражения электрическим током | II |
| Вес изделия, кг | 1,54 |
| Срок службы, не менее, лет | 25 |
Комплектация
![]() |
DIN-рейки | ![]() |
Сальники |
![]() |
Заглушки резиновые | ![]() |
Держатели DIN-рейки ступенчатого типа |
![]() |
Шины N/PE | ![]() |
Суппорт для шин N/PE |
![]() |
Пластиковые винты | ![]() |
Дюбели |
![]() |
Маркировочная лента | ![]() |
Монтажный уровень |
Преимущества
- Доставка по всей России
- Более 200 000 товаров в ассортименте
- Профессиональная консультация
- Кабель БЕЗ опасности
- Качество по ГОСТу
-
Зайдите на страницу товара и нажмите на кнопку «В корзину».
Далее можно продолжить покупки или перейти к оформлению заказа.
-
Перейдите в Корзину и нажмите «Перейти к оформлению».
Можно авторизоваться или оформить заказ без регистрации. Зарегистрированные пользователи могут:
- Отслеживать статус заказа
- Получать спецпредложения и промокоды на дополнительные скидки
- Укажите Ваши контакты: ФИО, телефон и e-mail.
- Выберите способ получения заказа (доставка или пункт самовывоза) и способ оплаты.
- Далее «Оформить заказ».
Готово: ваш заказ создан! По электронной почте или в личном кабинете Вы можете отслеживать статус заказа.
Теперь останется только ждать доставки и радоваться новой покупке!
Оплачивайте покупки удобным способом.
В нашем интернет-магазине доступно 3 варианта оплаты:
- Оплата наличными или картой при самовывозе в пункте выдачи заказов/магазине.
- Онлайн-оплата на сайте при оформлении заказа. Для совершения покупки система перенаправит вас на страницу платежного сервиса. Здесь необходимо заполнить форму по инструкции.
- Оплата по счету для юридических лиц. Оплата происходит после предоставления реквизитов для выставления счета. Покупатель получает счет на указанный e-mail.
Доступно 3 варианта доставки:
- Самовывоз из магазина. Список торговых точек для выбора появится в корзине. Для получения заказа обратитесь к сотруднику в кассовой зоне и назовите номер заказа.
- Доставка транспортной компанией СДЭК или Почтой РФ в отделение или постамат.
По всем возникающим вопросам можете позвонить нам на горячую линию:
Ежедневно с 8:00 до 20:00 по МСК
E-mail: help@kristall43.ru
Адрес: 610000, г. Киров, ул. Щорса, 68г, кабинет 3

















